鎌倉の豊かな緑に包まれ、洗練されたモダンな意匠が光るデザイナーズハウスが誕生します。
湘南モノレール「西鎌倉」駅より徒歩11分、閑静な第一種低層住居専用地域に位置するこの邸宅は、プライバシーを確保しながら自然を身近に感じる「中庭」を中心とした豊かな暮らしを提案します。
鎌倉の自然と響き合う、中庭のある邸宅。
西鎌倉4丁目 角立地の新築
本物件は、単なる「家」ではなく、中庭という中間領域を通じて光や風を感じ、心からリラックスできる「空間」を目指しました。
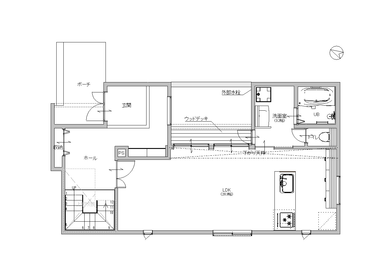
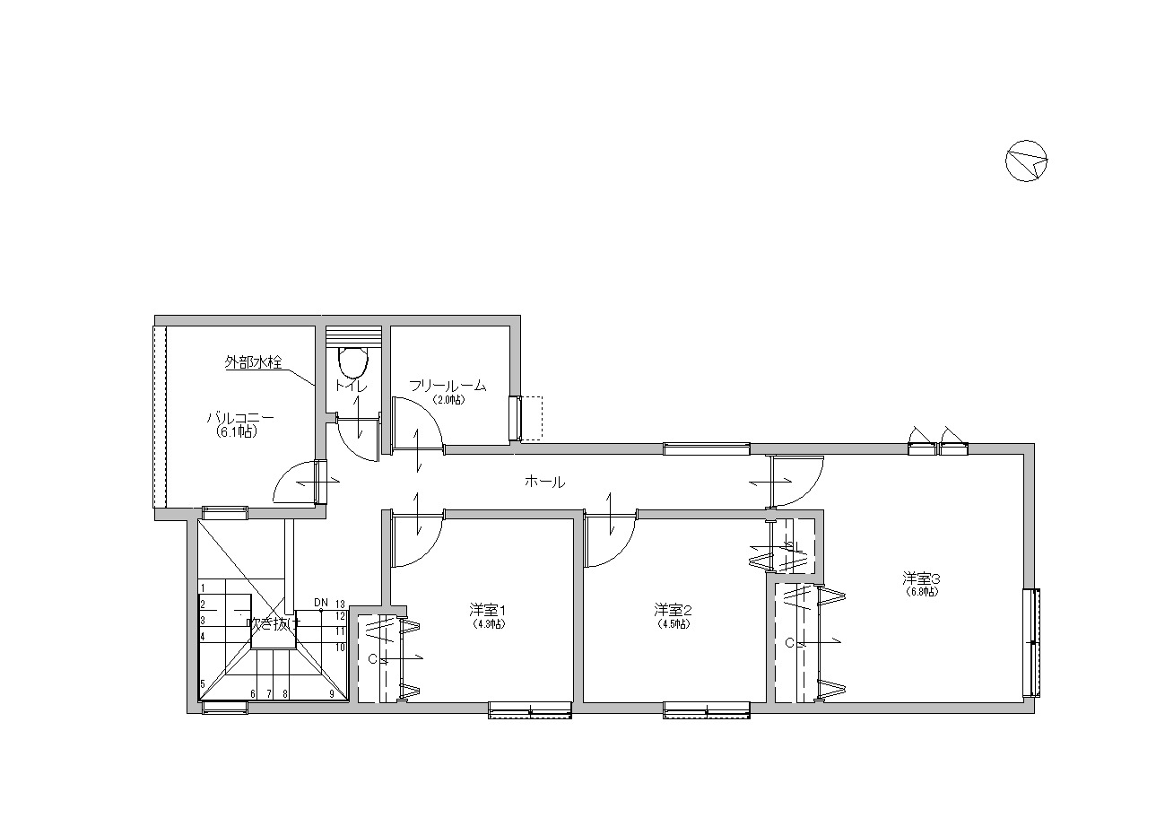
特にこだわったのは、玄関を入った瞬間に中庭の景色が広がる開放感と、リビングを彩る美しい鉄骨階段のシルエットです。全く同じ仕様の物件は他にございません。詳細な図面や仕様書をご用意して、皆様の理想のライフスタイルをご提案させていただきます。ぜひ一度、お気軽にお問い合わせください。
| 所在地 | 鎌倉市西鎌倉4丁目 | 交通 | 湘南モノレール /
西鎌倉駅
徒歩11分 |
|---|---|---|---|
| 種別 | 新築戸建 | 価格 | 8,180万円(税込) |
| 土地面積 | 198.37m² (60.00坪) | 建物面積 | 113.85m² (34.43坪) |
| 間取り | 3LDK + フリールーム 間取り・区画図を取り寄せる | 構造・階建て | 木造 地上2階 |
| 築年月 | 完成予定令和 8年 9月 | 建築確認番号 | 第2025SBC-確02865H号 |
| 現況 | 建築中 | 私道負担 | |
| 権利形態 | 所有権 | 取引形態 | 仲介 |
| 物件番号 | 66-29930 | ||
| 備考 |
都市ガス・本下水完備 ※土地面積に駐車場・階段面積約74㎡含む 引き渡し: 相談 西鎌倉小学校まで徒歩12分 約900m 手広中学校まで徒歩12分 約900m ローソンまで徒歩10分 約750m ユーコープまで徒歩13分 約1000m |
||
物件について
ご質問、資料請求、現地見学を
ご希望の方、
こちらよりお気軽に
お問い合わせくださいませ。
| 物件番号 | 66-29930 |
|---|
この物件について
お電話でのお問合わせはこちらから
お電話でのお問合わせはこちらから






