逗子市逗子2丁目は、駅の利便性が高いため、都心へお勤めの方や、アクティブなご家族に特におすすめできるエリアです。
逗子海岸への散策も可能な距離感で、休日のリフレッシュにも適しています。
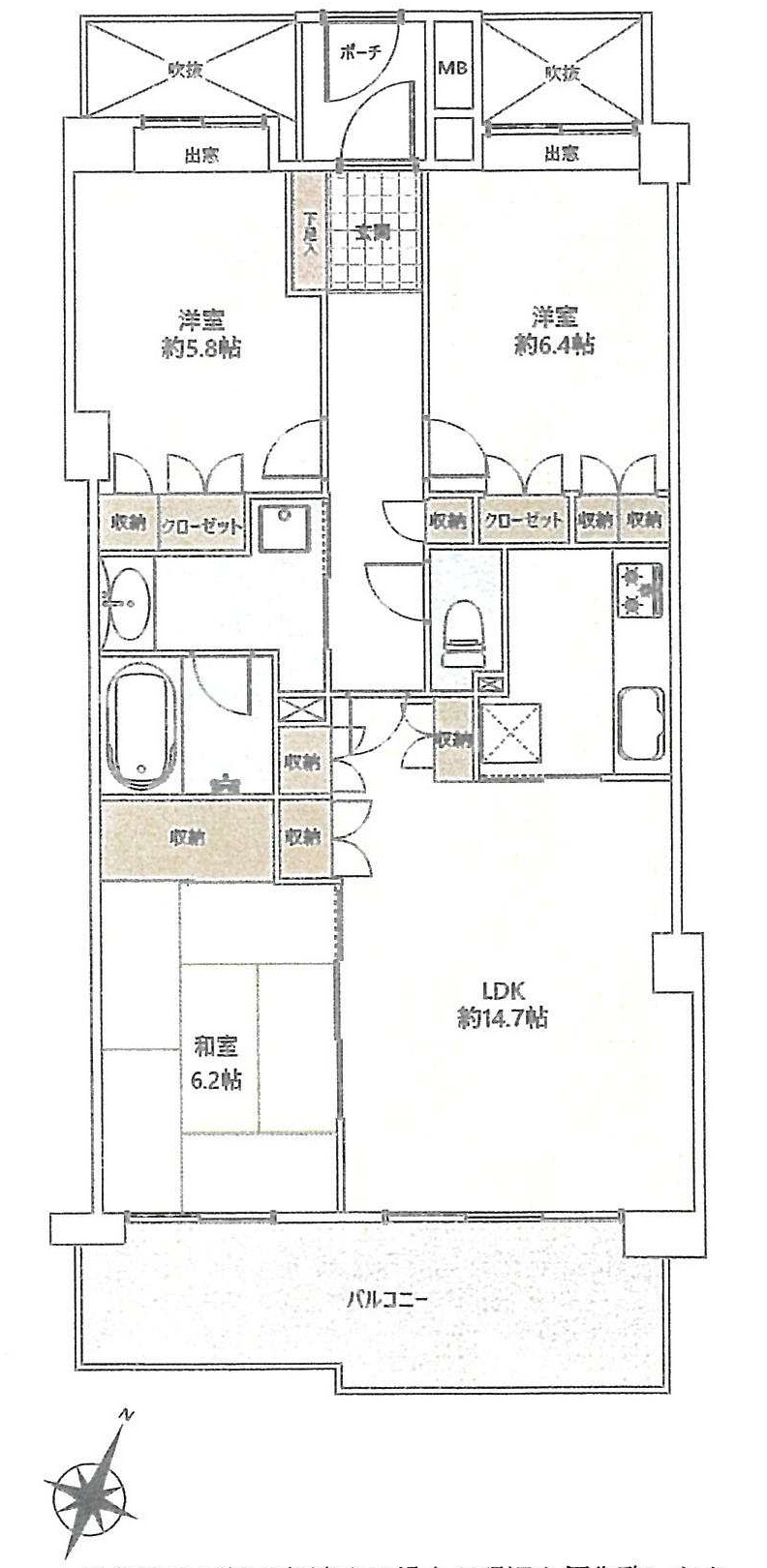
広々とした75㎡超の室内空間と、逗子の便利な暮らしを、ぜひ現地でご体感ください。
《逗子・葉山駅5分》都心直結の好アクセス・・・海辺の安らぎも享受する75㎡超住戸
湘南の玄関口として人気の高い、逗子市逗子に。
利便性と海辺の暮らしを両立したマンションが出ました。
当物件の立地する逗子エリアは、京急逗子線**「逗子・葉山駅」まで徒歩5分**という、非常に優れたアクセス環境を誇ります。都心への移動がスムーズで、日々の通勤・通学に快適さをもたらします。
専有面積75.96平方メートルを有し、ご家族皆様がゆったりと過ごせる空間が設計されています。
また、**逗子海岸までは徒歩20分(約1.5キロメートル)**の距離にあり、散策を楽しみながら海辺の開放感を感じることができます。
都会の利便性を享受しながらも、海と緑の豊かな逗子の穏やかな空気の中で、心豊かな毎日をお過ごしいただきたく存じます。
| 所在地 | 逗子市逗子2丁目 | 交通 | 京急逗子線 /
逗子・葉山駅
徒歩5分 JR横須賀線 / 逗子駅 徒歩7分 |
|---|---|---|---|
| 種別 | マンション | マンション名 | コープ湘南逗子 |
| 価格 | 6,280万円(税込) | 権利形態 | 所有権 |
| 専有面積 | 75.96m² (壁芯) | 管理形態 | 日勤 |
| 間取り | 3LDK 間取り・区画図を取り寄せる | 現況 | 空家 |
| バルコニー面積 | 12.24m² | 管理費 | 11,800円/月 |
| 構造 | RC造 | 修繕積立金 | 18,080円/月 |
| 総階数 | 地上6階 | 駐車場 |
空き状況要確認
使用料 有 9,000円/月 ~14,000円/月 |
| 所在階数 | 4階 | 取引形態 | 仲介 |
| 築年月 | 平成 10年 2月 | 物件番号 | 56-29180 |
| 備考 |
駐輪場:100円~300円/月額 バイク置場:1000円/月額 引き渡し: 相談 ファミリーマートまで徒歩5分 約400m スズキヤまで徒歩7分 約550m 下田公園まで徒歩1分 約60m 湘南アイルド保育園まで徒歩6分 約450m |
||
| その他要件 |
令和7年11月リフォーム済み:■新規交換(キッチン・ユニットバス・洗面化粧台・トイレ・建具・洗濯パン・インターホン)■フローリング張替■クロス張替■照明器具設置■カーテンレール・レースカーテン設置■エアコン1基設置■網戸張替え■クリーニング |
||
物件について
ご質問、資料請求、現地見学を
ご希望の方、
こちらよりお気軽に
お問い合わせくださいませ。
| 物件番号 | 56-29180 |
|---|
この物件について
お電話でのお問合わせはこちらから
お電話でのお問合わせはこちらから






