小田急江ノ島線「本鵠沼駅」まで徒歩10分
海まで約2.1km
気分転換したい時やふとした時にふらっと海まで散歩することができる湘南らしい立地。海が身近に感じる「海辺暮らし」をお楽しみ頂けます。
《まるで3方角地のような開放感》
~屋上付き「デザイナーズプロジェクト」~
~藤沢市本鵠沼~
一年を通して気候が温暖で、陽気な雰囲気のある鵠沼。
平坦な道が多く、サーフボードを片手に海に向かうサーファーをよく見かけられます。
朝一に海辺を散歩したり、夕方にはサンセットを見ながら砂浜で黄昏る。そんな湘南らしい日常が寄り添います。
閑静な住宅街に誕生した全3棟の新築デザイナーズプロジェクト!
屋外シャワーを標準装備し、湘南らしいサーファーズハウス。
ご紹介する棟は、東道路に面して南北に隣地の通路が通っているため、まるで3方角地のような開放感。
カースペースは車種により2台駐車可能。
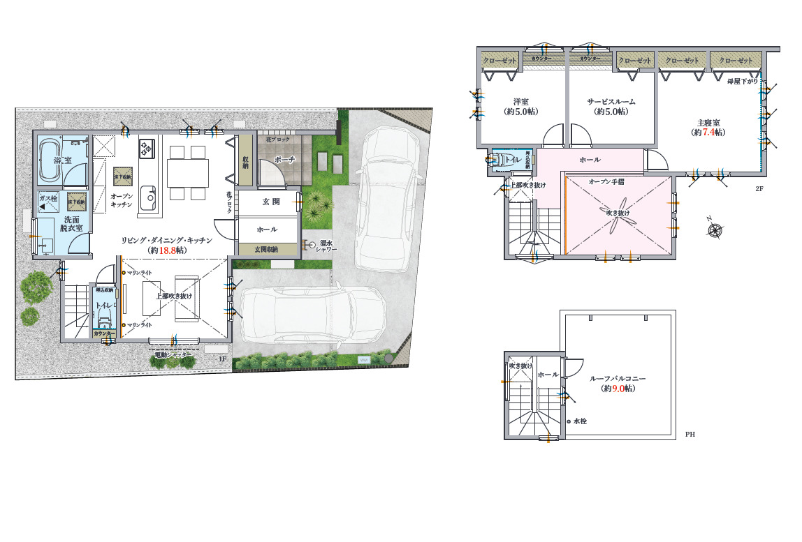
1階リビングで、ご家族の集まるLDKは約18.8帖と広々。
オープンキッチンに加えて、リビング上部は吹き抜け空間。
縦と横の奥行きを演出し、開放的な室内に感じられます。
バスルームなどの水回りはLDKのある1階に集約。
ワンフロアで完結できる家事動線を意識した間取り。
なんといっても大型ルーフバルコニー付き!
頭一つ抜けた景色はもちろん、お子様の遊び場など多目的にご利用頂けます。
お気軽にお問い合わせください。
| 所在地 | 藤沢市本鵠沼4丁目 | 交通 | 小田急江ノ島線 /
本鵠沼駅
徒歩10分 |
|---|---|---|---|
| 種別 | 新築戸建 | 価格 | 7,490万円(税込) |
| 土地面積 | 115.99m² (35.08坪) | 建物面積 | 94.60m² (28.61坪) |
| 間取り | 2LDK + サービスルーム(5帖) 間取り・区画図を取り寄せる | 構造・階建て | 木造 地上2階 |
| 築年月 | 完成予定令和 8年 5月 | 建築確認番号 | 第2025SBC-確01207Y号 |
| 現況 | 建築中 | 私道負担 | |
| 権利形態 | 所有権 | 取引形態 | 仲介 |
| 物件番号 | 71-29547 | ||
| 備考 |
都市ガス・本下水完備 引き渡し: 相談 藤沢市立鵠沼小学校まで徒歩8分 約600m 藤沢市立鵠沼中学校まで徒歩14分 約1100m 鵠沼げんきっず保育園まで徒歩3分 約190m セブンイレブンまで徒歩3分 約240m スズキヤまで徒歩7分 約500m ハックドラッグまで徒歩6分 約450m 郵便局まで徒歩11分 約850m |
||
物件について
ご質問、資料請求、現地見学を
ご希望の方、
こちらよりお気軽に
お問い合わせくださいませ。
| 物件番号 | 71-29547 |
|---|
この物件について
お電話でのお問合わせはこちらから
お電話でのお問合わせはこちらから






