ご覧いただきありがとうございます。
東宝ハウス逗子・葉山リゾートのエージェント、秋吉です。
本物件は高台にあるゆったりとした敷地面積のリノベーション物件です。
周辺環境は落ち着きのある雰囲気でございます。
ぜひ、現地をご覧ください!
お問い合わせお待ちしております。
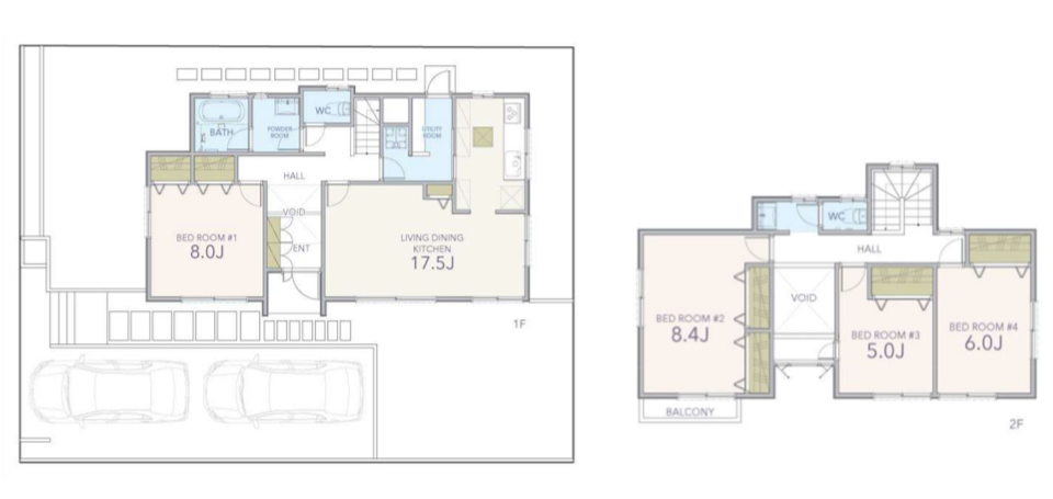
【敷地面積220㎡超、カースペース2台!】
~徒歩1分のところに素敵な眺望♪~
Access
・JR横須賀線「逗子」駅よりバス17分 バス停より停歩7分
逗子駅から主要駅までの所要時間
大船駅 直通 約11分
横浜駅 直通 約30分
品川駅 直通 約55分
東京駅 直通 約60分
新宿駅 直通 約65分
| 所在地 | 鎌倉市浄明寺6丁目 | 交通 | JR横須賀線 /
逗子駅
バス17分 徒歩7分 JR横須賀線 / 鎌倉駅 バス23分 徒歩7分 江ノ島電鉄線 / 鎌倉駅 バス23分 徒歩7分 |
|---|---|---|---|
| 種別 | 中古戸建 | 価格 | 5,999万円(税込) |
| 土地面積 | 223.60m² (67.63坪) | 建物面積 | 122.00m² (36.90坪) |
| 間取り | 4LDK 間取り・区画図を取り寄せる | 構造・階建て | 木造 地上2階 |
| 築年月 | 平成 6年 3月 | 建築確認番号 | |
| 現況 | 空家 | 私道負担 | |
| 権利形態 | 所有権 | 取引形態 | 仲介 |
| 物件番号 | 61-29851 | ||
| 備考 |
都市ガス・本下水完備 ※ディスプレイ用の家具および備品は販売価格には含まれません 引き渡し: 相談 逗子ハイランドスポーツ広場まで徒歩4分 260m 西友まで徒歩10分 約750m |
||
| その他要件 |
令和8年2月リフォーム済み:■新規交換(玄関ドア・キッチン・洗面化粧台・浴室・建具・トイレ・給湯器)■食洗機新設■防蟻処理■クロス張替■フローリング上張り■駐車場新設 |
||
物件について
ご質問、資料請求、現地見学を
ご希望の方、
こちらよりお気軽に
お問い合わせくださいませ。
| 物件番号 | 61-29851 |
|---|
この物件について
お電話でのお問合わせはこちらから
お電話でのお問合わせはこちらから






